相关资讯
Related News- 空气能热泵 + PLC 智能控制:破解天然气压差发电复热难题
- 欧麦朗高温热泵在汽车轮毂涂装前处理中的创新应用
- 高温热泵助力连续镀:从工艺适配到效益提升
- COP 达 3-5、节能超 60%!热泵技术为金属件清洗工艺降本增效提供关键路径
- 空气能热泵在汽车配件清洗恒温热水供应中的核心价值
- 节能黑科技:高温水源热泵如何重塑饮料无菌灌装生产线的能源效率
- 欧麦朗高温复叠热泵助力某电子股份有限公司PCB工艺热水
- 超声波清洗 + 空气能热泵恒温:双技术协同,让清洗效果稳、能耗省、寿命长
- 欧麦朗三期热泵烘干机项目将完工:赋能某资深工业品牌泰国工厂发泡模具生产
- 注塑车间高温不用愁?欧麦朗蒸发冷空调精准控温还省电
- 夏季养殖场鱼池高温 “烤” 验?空气能恒温热泵解锁全年温控新方案
- 高温热泵:点 “废” 成金的工业能源革命
联系我们
Contact Us
億彩
地址:新北区龙虎塘新区产业园区
电话:13706164559
手机:13706164559(微信同号)
QQ:2242597105
地址:新北区龙虎塘新区产业园区
电话:13706164559
手机:13706164559(微信同号)
QQ:2242597105
欧麦朗双源热泵在污水处理中的应用
更新时间:2023-06-21 点击:750
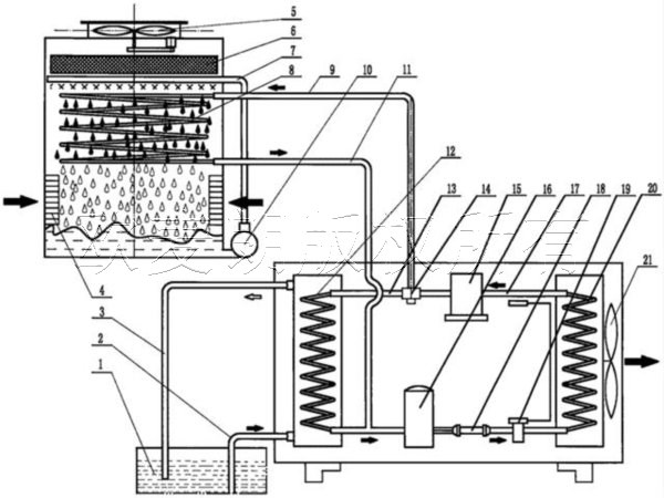
随着经济的飞速发展,人们生活水平不断提高,生活品质也在相应的提升。城市污水是水资源利用的重要一环。每个污水处理厂平均每天的处理量都在百吨伊桑以上,污水处理的量跟气温有一定的联系,在冬季污水温度低流动性差,厌氧池温度低,微生物不参与活动,导致污水处理的量有所下降,在冬季如何保证能源较大化利用是污水处理的一个重要环节。
双源热泵与污水处理技术是当前环保领域的热门话题之一。双源热泵技术是利用地热与空气能源作为能源源头,通过一定的技术手段将室内或室外的热量传递给需要加热或制冷的空间,并实现节能减排的目的。而污水处理技术是指将城市、工业或农村等生活污水经过一定的处理过程,使之达到排放标准或能够循环利用的水质要求的技术。

通常污水处理厌氧池需要升温,而污水在处理结束后的水温通常都在15度左右。如何有效的进行资源回收利用是节能的重要环节。设计思路采用双源热泵机组,以回收处理结束后的水中热量,将排放水温由原来的15度降至7度进行排放,回收的热量用于厌氧池,剩余部分采用空气作为热源进行补足,保证同等情况下资源较大化的回收和利用。
总之,双源热泵技术与污水处理技术的结合可以实现能源的循环利用和节能减排,推动绿色环保产业的发展。

上一条信息:【养殖恒温案例】三亚水产鱼苗种加热恒温系统
下一条信息:【工业加热】空气能热泵在超声波清洗加热应用


小程序