相关资讯
Related News- COP 达 3-5、节能超 60%!热泵技术为金属件清洗工艺降本增效提供关键路径
- 空气能热泵在汽车配件清洗恒温热水供应中的核心价值
- 节能黑科技:高温水源热泵如何重塑饮料无菌灌装生产线的能源效率
- 欧麦朗高温复叠热泵助力某电子股份有限公司PCB工艺热水
- 超声波清洗 + 空气能热泵恒温:双技术协同,让清洗效果稳、能耗省、寿命长
- 欧麦朗三期热泵烘干机项目将完工:赋能某资深工业品牌泰国工厂发泡模具生产
- 注塑车间高温不用愁?欧麦朗蒸发冷空调精准控温还省电
- 夏季养殖场鱼池高温 “烤” 验?空气能恒温热泵解锁全年温控新方案
- 高温热泵:点 “废” 成金的工业能源革命
- 某食品厂屠宰用空气能太阳能热水系统交付 绿色生产再添新动能
- 空气源热泵冷热双供系统在电镀车间的节能改造应用
- 光伏厂节能:热泵回收 PCW 回水余热 赋能制绒车间
联系我们
Contact Us
億彩
地址:新北区龙虎塘新区产业园区
电话:13706164559
手机:13706164559(微信同号)
QQ:2242597105
地址:新北区龙虎塘新区产业园区
电话:13706164559
手机:13706164559(微信同号)
QQ:2242597105
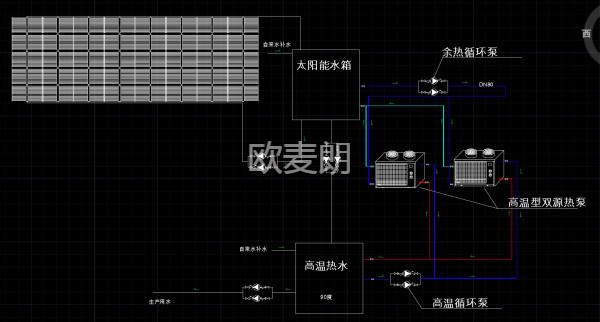
【高温热水方案】工业太阳能集热器与高温双源热泵结合
更新时间:2022-08-01 点击:810
高温热水在工业领域最为常见,随着各种能源费用的不停涨价,很多公司在寻找各种节能降耗方案。有太阳能,高温空气源热泵,高温水源热泵等。各种产品的优势与短板并存。

欧麦朗致力研发工业节能降耗方案。公司生产产品包括:太阳能、空气能、水源热泵、双源热泵等。经过多年节能工程的技术积累,研发出最新的高温热水解决方案,太阳能与双源热泵的结合,大大的节省了高温热水的能源成本。下面就为大家介绍我们的太阳能+双源热泵方案。

众所周知太阳能是非常好的可再生能源,只要有太阳就可以生产热水,但是它的弊端也很明显。投资高,受天气影响大,夏季与冬季温度悬殊大,需日照时间长。但是它的优点更明显,所制热水都是0成本!所以只要能够在阴雨天和冬天等光照不足天气,补足太阳能所需热量,就依然可以制热水!
欧麦朗双源热泵就是我们为太阳能提供的辅助热源,欧麦朗双源热泵是一款由空气源和水源结合的热泵机组。将空气能热泵和水源热泵结合,既可以吸收空气中的能源有可以吸收水中的能源。是一款节能型热泵机组。
我们将太阳能和双源热泵结合,考虑到以下三种情况,进行方案设计。

①双源热泵优先检测太阳能水箱温度,当太阳能水箱温度高于环境温度时,双源热泵水源侧吸收太阳能水箱热量,制80℃-90℃热水。
②当太阳能温度低于环境温度时,双源热泵转换空气侧,吸收环境中的热量,制80℃-90℃热水。
③当夏季时,光照强度大,时间长,日照辐射量大。太阳能就可以制出高温热水,基础水温高,太阳能水箱温度高于高温水箱的时候,启动水箱循环!这时所制高温热水都是由太阳能光照产生,没有耗费任何其他能源!
第一种情况适用于春秋季,第二种情况适用于冬季和阴雨天,第三种情况适用于夏季!这样一年四季都可以保障80-90℃的高温热水的供应,同时充分利用太阳能这一免费能源的优势。双源热泵补足太阳能缺陷。做到了取长补短,优势互补!


有需要工业高温热水、工业节能方案的可以联系我们!欧麦朗专注于高温热水改造、高温烘干改造、余热回收等工业节能工程!我们将为您提供一站式节能方案服务!快来了解咨询吧!



小程序