相关资讯
Related News- COP 达 3-5、节能超 60%!热泵技术为金属件清洗工艺降本增效提供关键路径
- 空气能热泵在汽车配件清洗恒温热水供应中的核心价值
- 节能黑科技:高温水源热泵如何重塑饮料无菌灌装生产线的能源效率
- 欧麦朗高温复叠热泵助力某电子股份有限公司PCB工艺热水
- 超声波清洗 + 空气能热泵恒温:双技术协同,让清洗效果稳、能耗省、寿命长
- 欧麦朗三期热泵烘干机项目将完工:赋能某资深工业品牌泰国工厂发泡模具生产
- 注塑车间高温不用愁?欧麦朗蒸发冷空调精准控温还省电
- 夏季养殖场鱼池高温 “烤” 验?空气能恒温热泵解锁全年温控新方案
- 高温热泵:点 “废” 成金的工业能源革命
- 某食品厂屠宰用空气能太阳能热水系统交付 绿色生产再添新动能
- 空气源热泵冷热双供系统在电镀车间的节能改造应用
- 光伏厂节能:热泵回收 PCW 回水余热 赋能制绒车间
联系我们
Contact Us地址:新北区龙虎塘新区产业园区
电话:13706164559
手机:13706164559(微信同号)
QQ:2242597105
2018年,中企在“一带一路”沿线国家的经贸合作进一步深化,落地一系列重大项目,中国和发展中国家通过“一带一路”搭建互联互通网络的同时,许多发达国家积极参与。中国已与意大利、比利时、新加坡、日本、法国、加拿大、西班牙、荷兰看、澳大利亚等签署第三方合作文件。欧麦朗公司也投入到“一带一路”的企业合作建设中。

欧麦朗在企业的建设中,可以提供制热、制冷、烘干、余热回收等经济、适用、环保的空气源热泵产品、太阳能产品、来满足企业建设中的员工宿舍生活用热水,生活用热泵中央空调、企业生产用高温热水、生产用冷水、以及生产环境的改善,车间的恒温、降温、车间烘房的恒温、产品的烘干等,对于出口国外的产品,提供远程设计、安装、调试等指导和视频会议等支持。得到了许多合作企业的认可。

2020年,欧麦朗公司承接一个在印尼的中方企业镍钴生产基地的员工生活热水工程,项目位于印度尼西亚北马鲁古省OBI岛西部,西临马鲁古海。气候类型属于热带季风型气候,终年高温、多雨、潮湿,年平均气温25~27℃,最高温度为35℃,最低温度22.7℃。
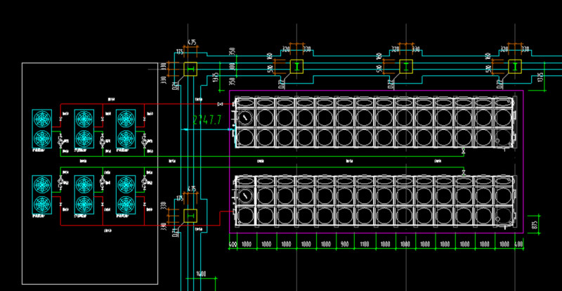
我们根据当地的气候情况,再根据13个公寓,两个食堂的热水需求量,来配置了6台空气源热泵和两个水箱,加上循环泵等。如下图:

印尼项目在外贸人员、生产技术人员、工程设计人员、安装调试人员等的大力配合下,顺利完成,并运行至今。

中国是目前印尼的贸易伙伴,也是印尼基础设施建设的助力者。“刘廊六路多国多港”的建设将稳步继续向前推进,多区域重点项目正在积极规划建设中。欧麦朗公司带着蓬勃的朝气,凝聚高昂的士气,承载开拓的锐气,胸怀必胜的志气。以专业设计、生产、安装、调试、售后一条龙服务,并提供太阳能、空气能多能源组合的节能、降耗、环保的解决方案。让欧麦朗品牌绽放全球市场。



小程序