相关资讯
Related News- COP 达 3-5、节能超 60%!热泵技术为金属件清洗工艺降本增效提供关键路径
- 空气能热泵在汽车配件清洗恒温热水供应中的核心价值
- 节能黑科技:高温水源热泵如何重塑饮料无菌灌装生产线的能源效率
- 欧麦朗高温复叠热泵助力某电子股份有限公司PCB工艺热水
- 超声波清洗 + 空气能热泵恒温:双技术协同,让清洗效果稳、能耗省、寿命长
- 欧麦朗三期热泵烘干机项目将完工:赋能某资深工业品牌泰国工厂发泡模具生产
- 注塑车间高温不用愁?欧麦朗蒸发冷空调精准控温还省电
- 夏季养殖场鱼池高温 “烤” 验?空气能恒温热泵解锁全年温控新方案
- 高温热泵:点 “废” 成金的工业能源革命
- 某食品厂屠宰用空气能太阳能热水系统交付 绿色生产再添新动能
- 空气源热泵冷热双供系统在电镀车间的节能改造应用
- 光伏厂节能:热泵回收 PCW 回水余热 赋能制绒车间
联系我们
Contact Us
億彩
地址:新北区龙虎塘新区产业园区
电话:13706164559
手机:13706164559(微信同号)
QQ:2242597105
地址:新北区龙虎塘新区产业园区
电话:13706164559
手机:13706164559(微信同号)
QQ:2242597105
苏州太仓国际车联网大数据产业园[平板太阳能+多水箱承压系统相结合]项目顺利交付
更新时间:2021-07-18 点击:840
太仓国际车联网大数据产业园项目总投资2.5亿美元,由世纪互联、启迪设计集团股份有限公司联合投资,致力于车联网、云计算、智能制造、区块链等相关领域运用。据悉,产业园达产后年销售不低于8亿元。项目方还将在璜泾镇设立1500万元的产业基金,用于支持落户于璜泾镇的科创项目发展,特别是车联网、云计算、大数据、智能制造、区块链等相关产业项目。
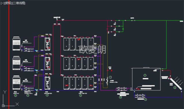
江苏欧麦朗能源科技有限公司很荣幸承接了该园区的生活热水项目,欧麦朗工程人员为其设计了平板太阳能+多水箱空气能承压相结合的系统,下面小编简单介绍一下该系统的优势:

太阳能+模块承压闭式小水箱运行原理图
1、太阳能采用独立运行,集热水箱充分吸收太阳能的热量,加大太阳能的能效。
2、供水时,所有用水均来自集热水箱,不管是冬季还是夏季,集热水箱水温相对比冷水温度更高,从而让空气能运行加热的时间更短,也加大了空气能的能效。
3、太阳能与空气能的完美组合,让后期的运行费用降到最低。加速了太阳能空气能的投资回报比。
4、开式水箱与闭式小水箱,让太阳能和空气能都能将能效发挥到最大。
5、一大一小的组合,也让屋面承重得到了最大的利用。
6、闭式小水箱的运用,承压出水、不会忽冷忽热、系统稳定、安全、节能。



近日,欧麦朗顺利交付了苏州太仓国际车联网大数据产业园平板太阳能+多水箱承压系统相结合热水系统,该系统再验收时得到了园区领导的一致好评。欧麦朗会再接再厉,为更多的企业单位送去舒适节能环保的热水系统。
上一条信息:南京东陶有限公司检测产品用空气能冷热水系统


小程序