相关资讯
Related News- COP 达 3-5、节能超 60%!热泵技术为金属件清洗工艺降本增效提供关键路径
- 空气能热泵在汽车配件清洗恒温热水供应中的核心价值
- 节能黑科技:高温水源热泵如何重塑饮料无菌灌装生产线的能源效率
- 欧麦朗高温复叠热泵助力某电子股份有限公司PCB工艺热水
- 超声波清洗 + 空气能热泵恒温:双技术协同,让清洗效果稳、能耗省、寿命长
- 欧麦朗三期热泵烘干机项目将完工:赋能某资深工业品牌泰国工厂发泡模具生产
- 注塑车间高温不用愁?欧麦朗蒸发冷空调精准控温还省电
- 夏季养殖场鱼池高温 “烤” 验?空气能恒温热泵解锁全年温控新方案
- 高温热泵:点 “废” 成金的工业能源革命
- 某食品厂屠宰用空气能太阳能热水系统交付 绿色生产再添新动能
- 空气源热泵冷热双供系统在电镀车间的节能改造应用
- 光伏厂节能:热泵回收 PCW 回水余热 赋能制绒车间
联系我们
Contact Us
億彩
地址:新北区龙虎塘新区产业园区
电话:13706164559
手机:13706164559(微信同号)
QQ:2242597105
地址:新北区龙虎塘新区产业园区
电话:13706164559
手机:13706164559(微信同号)
QQ:2242597105
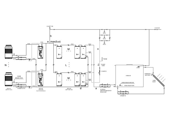
【多能源热水系统】多水箱承压式空气能+太阳能热水系统
更新时间:2021-05-26 点击:742
这套系统是开式集中式的太阳能集热系统和多水箱闭式空气能系统相结合。加大太阳能水箱可以增加太阳能的能效,增加储热水罐的储水量,同时水箱采用开式水箱从而减轻水箱自重带来的承重负荷。而供水水箱则采用分散式闭式多个小水箱,其优点在于加大用水量的同时,减少了屋面荷载。并且单个水箱占地面积小,可以自由排布,适应各种安装环境;而且用水末端承压出水,不需要靠增加供水水泵来加压供水,使得整个系统更加节能,用水末端更加舒适。
这套系统的辅助热源采用空气能热泵,而非传统的电加热或者燃气。相对这两种能源不同的是,空气能热泵是水电分离,而且能耗是电加热的1/4,更加安全和节能,而且空气能也是属于国家认证的节能产品,安全环保,运行寿命长,使用方便安全。





上一条信息:常见温室大棚采暖方式比较
下一条信息:热泵烘干机应用于超滤膜的烘干


小程序